当社の連結子会社である株式会社SPACE HOSTEL(代表者:田野 大地、以下「SPH社」といいます。)は、住宅宿泊事業(※1)の第三弾として、空き家の有効活用を目的とした第一号宿泊施設
「CASA fantasia Kyoto (カーサ ファンタジア 京都)」を、京都府京都市右京区においてグランド
オープンいたしました。
(※1)「住宅宿泊事業」とは、一般の住宅やマンションの一室を旅行者に貸し出す仕組みで、
ホテルとは異なり、暮らすように滞在することで新たな宿泊体験が得られます。
1.CASAブランドについて
「CASA(カーサ)」は、スペイン語で“家”を意味します。
“現地に暮らすような心地よさと温もり”を大切にした空間を提供します。
「暮らすように泊まる」をテーマに、旅先でも自宅のようにくつろげるひとときをお届けする宿泊施設です。
静かな住宅街の落ち着きと、都心部へのスムーズなアクセスを兼ね備え、まるで現地に暮らしているかのような宿泊体験をお楽しみいただけることを特徴としています。

2.コンセプト
年々増加する空き家を、新たなかたちで活かすことを目的に誕生した「CASA fantasia Kyoto
(カーサ ファンタジア 京都)」。
長らく使われていなかった、小さな戸建住宅を見つめ直し、大切に残したい日本らしい和の要素と、
京都の旅に寄り添える空間づくりの工夫を丁寧に取り入れました。
3.施設のご紹介
京都市右京区の静かな場所に佇む、小さな1Kの和風戸建て民泊です。
お友達やカップルでのご利用にもぴったり。
落ち着いた和の空間で、旅の疲れを癒しながらゆったりとした京都時間をお楽しみください。
◇ 静かな和の玄関が、京都旅を穏やかな空間へと迎え入れます。


玄関を抜けると、畳のある和の空間へと自然につながります。
◇ 畳と木のぬくもりに包まれて心ほどけるひとときを


畳と木のぬくもりに包まれて、静かにくつろぐ和空間。
【定員数】最大4名
・ベッド2台とお布団2セットを備え、最大4名様までゆったりとお過ごしいただけます。
◇ 和の空間に、現代の快適さを備えた設備をご準備しました。
使い勝手のいいキッチン
乾燥機付きの洗濯機は旅の強い味方
暮らすように過ごせる設備が整っています。
旅先でも、普段通りの快適さを。
◇ 京都に泊まって、日本の伝統的な遊びにふれてみませんか?

けん玉やお手玉、百人一首。
日本の昔ながらの遊びと、その楽しみ方を知るきっかけをご用意しました。
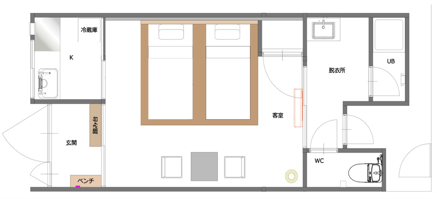
【間取り図】

4.施設概要

施設名
CASA fantasia Kyoto(カーサ ファンタジア 京都)
所在地
京都府京都市右京区山之内荒木町15-9
アクセス
京都駅から電車で約20分
最寄駅:京福電気鉄道嵐山本線「山ノ内」駅 徒歩約9分
「嵐電天神川」駅 徒歩12分
京都市営地下鉄「太秦天神川」駅 徒歩12分
関西国際空港から車で約90分、電車で約100分大阪国際空港(伊丹空港)から車で約60分、電車で約70分
特徴
一棟貸し/1日1組限定/最大4名まで宿泊可能
会社名
株式会社SPACE HOSTEL
(株式会社fantasista100%子会社)
予約方法(準備中)
Airbnb、Booking.com
5.周辺エリアについて
本施設は、京都市右京区山之内荒木町、穏やかな時の流れを感じられる住宅街の一角に佇んでいます。
観光地の喧騒から少し距離を置き、京都の日常にそっと身を置くようなそんな静かな時間が流れる場所です。
アクセスにも恵まれ、嵐山までは電車でおよそ15分。世界遺産の金閣寺へも約20分ほど。
さらに清水寺へも、電車とバスを利用して約30分と京都観光の拠点として便利な立地です。
徒歩圏内には最寄り駅やバス停があり、市内各所への移動もスムーズ。
近くにはコンビニや飲食店も揃っているため、観光はもちろん、長期滞在の方にも快適にお過ごしいただけます。
また、春には桜、秋には紅葉と、四季折々の景色を身近に感じられるのもこのエリアならではの魅力です。
歴史や文化の余韻に包まれながら、暮らすように過ごす京都の時間。
この場所で出会うひとときを、どうぞ心ゆくまでお楽しみください。
《嵐山》
《金閣寺》
6.ホテル・宿泊事業の見通し
当社グループは、東京・大阪・京都や沖縄をはじめ全国各地で、ホテル事業および住宅宿泊事業を順次拡大していきます。
加えて、Web3・ブロックチェーン技術を活用し、滞在をもっと便利で楽しい体験へつなげる取り組みも検討しています。
会員証NFTによる優待・先行予約や、地域の限定体験チケットのNFT化などにより、旅の前後も含めて楽しみが広がる仕組みを目指してまいります。
【本件に関するお問い合わせ】
株式会社fantasista
IR・PR担当
Mail:info@fantasista-tokyo.jp
