LDKプロジェクト【2025年12月6日OPEN】JR奈良駅徒歩7分!奈良公園アクセス抜群のエリアに12名宿泊できる貸切一軒家「Cocon Nara Sanjyo」がオープン!
2025年12月6日(土)
(LDKプロジェクト)


記事を保存するには愛媛新聞ID会員でのログインが必要です。
ログインしますか?。
記事を共有するには愛媛新聞ID会員でのログインが必要です。
ログインしますか?。
LDKプロジェクト
大阪を中心に民泊施設を運営する株式会社LDKプロジェクト(所在地:大阪府中央区、代表:生田博之)は2025年12月6日(金)奈良市三条町に「Cocon Nara Sanjyo」をオープンいたします。
《公式予約》https://go2eni.com/stay/cocon-narasanjyo/
《Instagram》https://go2eni.com/prtimes_eniinst


Cocon Nara Sanjyo について
「Cocon Nara Sanjyo (ここん ならさんじょう)」が誕生するのは、奈良市の三条エリア。JR奈良駅から徒歩7分という好立地にあり、奈良公園や東大寺、興福寺などの有名観光スポットへも徒歩圏内でアクセス可能です。奈良駅周辺は、歴史的建築や三条通りの趣ある町並みが残るエリアで、カフェや雑貨店、地元グルメの飲食店も点在しており、観光だけでなく散策も楽しめます。
1階リビング
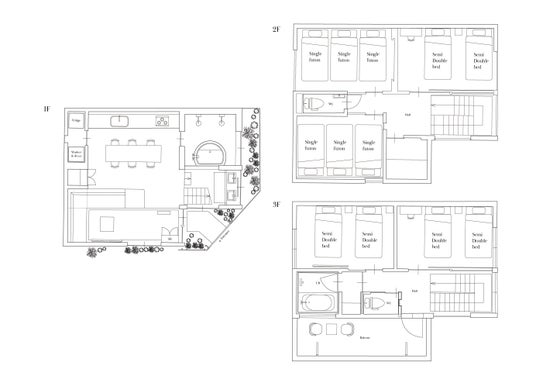
Cocon Nara Sanjyoは、3階建ての一棟貸しスタイルの宿泊施設です。広々とした間取りで、最大12名まで宿泊可能。家族や友人同士のグループでの滞在にも最適です。
リビングダイニングは、みんなで集まって食事や団らんを楽しめるゆとりの空間。各階に寝室を備え、プライベートも確保されています。
奈良の夜を愉しむ、こだわりのバスエリア

1Fバスエリア
リビング横には、埋め込み型のバスタブを備えたバスエリア。半円状のデザインが空間に柔らかさを添え、ゆったりとした入浴時間を演出します。シャワーは2台設置されており、グループ滞在でも快適に利用可能です。
夜は光に照らされ、うつくしく
夜になると、ガラス越しに見える木々がライトに照らされ、幻想的な雰囲気を醸し出します。入浴中やバスルームから眺める夜景は、旅のひとときに特別な彩りを添える、ここでしか味わえない体験です。
開放感溢れる洗面スペース

ガラス張りで心解き放つリラックス空間に
1階には、ガラス張りの空間が心地よい開放感を生む洗面スペースを配置。ダブルボウルの洗面台を備えているため、グループやファミリーでの滞在でも支度がスムーズに行えます。足元にはタイルや石材を組み合わせた仕上げを採用し、自然素材の質感が空間全体のアクセントとなっています。
夜は幻想的に彩る
夜になると、足元に仕込まれたライトが柔らかく灯り、昼とは異なる印象に。洗面台背面のガラス越しに見える木々がライトアップされ、幻想的な雰囲気を演出します。日中の清々しさと、夜のしっとりとしたムードを両方楽しめる、こだわりのデザインスペースです。
寝室について

セミダブルベッドでゆったりスペース
洋室3部屋にはそれぞれセミダブルベッドを2台ずつ配置し、ゆったりとした睡眠をサポート。和室にはシングル布団を3組ずつ用意しており、世代や好みに合わせて寝室を選べるのも特徴です。ファミリーからグループ旅行まで幅広い滞在スタイルに対応できる、柔軟性の高い間取りです。
和と洋の織り成す落ち着いた寝室
和室と洋室を組み合わせたバリエーション豊かな構成により、大人数でもプライバシーを確保しつつ、快適に過ごせる空間を実現。温かみのある照明と落ち着いたインテリアが、旅の疲れをそっとほぐし、心からくつろげるひとときを演出します。
歴史と文化が息づく奈良という土地で、「Cocon Nara Sanjyo」は、旅の拠点としてだけでなく、滞在そのものを特別な時間にする場です。観光名所へ歩いてアクセスできる利便性に加え、デザイン性を随所に取り入れた空間は、訪れる人々に新たな滞在体験をもたらします。
奈良の魅力をより深く感じていただける場所として、多くの方に知っていただければ幸いです。

間取り図

<当施設の概要>
●施設名:Cocon Nara Sanjyo (ここん なら さんじょう)
●住所 :〒630-8244 奈良市三条町593番48
●アクセス :JR「奈良」駅から徒歩7分
●料金プラン:25,000円~
《公式予約》https://go2eni.com/stay/cocon-narasanjyo/
eni. とは

eni.のコンセプト
e xtraordinary(非日常)
n arrative(物語)
i dentity(自分であること)
. (周りを旅すること)
忙しい日々を離れて、人生をすこしだけステイしませんか。eni.(エニ)はニッポンのあたらしい滞在体験をつくる都市型バケーションレンタルです。ゆっくりとくつろげる空間づくりをいちばんに考えながら、思い出に残したくなる世界観とインテリアにもこだわりました。リラックスするほどに、本来のジブンを取り戻していく。旅する人たちの物語の1ページをつづる、そんな居場所になりたいと思います。
《Instagram》https://go2eni.com/prtimes_eniinst
《eni公式HP》https://go2eni.com/prtimes_eni
わたしたちのこと

人生に綴られる ひとときをつくる
宿泊は「お客様の時間をお預かりして、快適で価値のある空間とサービスを提供すること」だと私たちは考えています。「また泊まりたい」と思ってもらえる施設をつくりたい。 設備やサービス、インテリア、清掃にいたるまで、 手を抜かず、心をこめる。訪れた人の「人生」 という物語の1ページになるような思い出に残る時間と体験ができる宿泊施設を提供します。
企 業 名 : 株式会社LDKプロジェクト
所 在 地 : 〒540-0017 大阪府大阪市中央区松屋町住吉6-26 eninal MACCHAMACHI 2F
代 表 者 : 代表取締役 生田博之
事業概要: 民泊施設の運営管理、レンタルスペースの運営管理、不動産賃貸業、清掃業務、貸別荘運
営、サウナ事業
《公式HP》https://ldk-pjt.com/prs_ldk_hp
【民泊運営代行に関するご相談やご質問先】
使用していない部屋を活用したい、民泊に興味があるけれど知識もなく不安、実際に自分でもできるか確認したいなど、些細な相談でもかまいません。業界をリードする大阪で長年民泊を営むLDKプロジェクトが丁寧にお答えします。お気軽にどうぞ!
《民泊代行ページ》https://ldk-pjt.com/ldk_daiko
【本件に関するお問合わせ・取材等のお申込み先】
株式会社LDKプロジェクト 運営管理担当
テレビや雑誌、新聞社様からの取材大歓迎です。
お気軽にお問合せくださいませ。
E-mail:marketing.div@ldk-pjt.com
企業プレスリリース詳細へ
PR TIMESトップへ
※この情報は、株式会社PR TIMESにより配信されたニュースリリースであり、その情報発信の責任は、配信企業側に帰属します。
